Bickenbach – freist. EFH mit Süd-Garten und Garage
Beschreibung
Gepflegtes Einfamilienwohnhaus mit großem Süd-Garten
und Garage
Wohnen wo andere Urlaub machen – an der ″Hessischen Bergstraße″.
Bickenbach ist eine charmante Gemeinde mit rund 6.200 Einwohnern und liegt idyllisch an der vorderen Bergstraße, zwischen den wirtschaftsstarken Metropolregionen Rhein-Main und Rhein-Neckar. Bickenbach verbindet eine ruhige Wohnatmosphäre mit der Nähe zu den Städten Darmstadt, Frankfurt, Heidelberg und Mannheim.
Das Einfamilienhaus befindet sich in ruhiger und zentraler Wohnlage in einem gewachsenen Wohngebiet, das überwiegend von Ein- und Zweifamilienhäusern geprägt ist und durch eine angenehme, familienfreundliche Nachbarschaft überzeugt.
Eckdaten:
Objekttyp: freistehendes Einfamilienwohnhaus mit einseitiger Grenzbebauung (West-Seite)
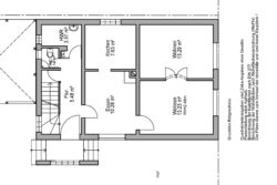
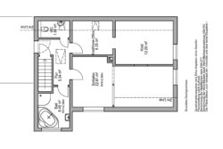
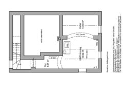
Wohnfläche gesamt ca.: 121 qm
Wohn- Schlafzimmer: 6
Bäder: 1
G‑WC: 2
Nutzfläche ca.: 68 m²
Kellerräume: 1
Garage/Stellplätze: 1 / 1
Nebenräume: Gartengeräteraum, Abstellraum/Werkstatt/Sommerküche
Grundstücksfläche ca.: 397 m² (BRW = 650,- EUR/qm)
Bezugsfrei ab: kurzfristig
Baujahr: 1930
Objektzustand: gepflegt (in Teilen renovierungsbedürftig)
Ausstattung: einfach bis normal
Anlagentechnik: 1993
Heizungsart: Gas-Zentralheizung mit WW-Aufbereitung (Viessmann)
Energieausweis: 222,47 kWh/(m²•a) = G (Bedarfsausweis)
Bauplanungsrecht: § 34 BauGB (umgebene Bebauung)
Internetverfügbarkeit: Glasfaserlehrrohr bereits im Haus; zudem bis zu 175 MBit/s (Telekom); Breitbandkabel bis zu 1.000 Mbit/s (Vodafone); Quelle: Internet
Mehr Informationen finden Sie im Exposé V2220
Im Alleinvermittlungsauftrag!
Provision
Die Käufer-Provision beträgt 1,78 % inkl. 19 % MwSt. vom beurkundeten Kaufpreis.
Die Käufer-Provision ist verdient und fällig mit notarieller Beurkundung. Der Immobilienmakler hat einen provisionspflichtigen Maklervertrag in gleicher Höhe mit dem Verkäufer abgeschlossen (§ 656 c BGB).
Alle Angaben erfolgen nach bestem Wissen, jedoch ohne Gewähr für die Richtigkeit/Vollständigkeit und beruhen auf Aussagen des Verkäufers, für deren Inhalt die Fa. Thomas Wolf Immobilien keine Haftung übernimmt.
Adresse:
- Adresse: Hügelstraße 15 in 64404 Bickenbach
- Land Deutschland
- Postal code/ZIP 64404
Überblick
- Objekt-Referenznummer V2220
- Preis 369.000 €
- Objekt-Typ Haus
- Objekt-Status verfügbar
- Zimmer 6
- Schlafzimmer 3
- Badezimmer 1
- Baujahr 1930
- Wohnfläche 121 m2
- Grundstücksgröße 397 m2
- Rubrik Kaufobjekt
- Garagen 1












