Hähnlein – Charmantes freistehendes EFH
Beschreibung
Charmantes EFH mit kleiner Werkstatt und Garten –
ideal für die kleine Familien, Paare oder Singles
Wohnen wo andere Urlaub machen – an der ″Hessischen Bergstraße″.
Alsbach-Hähnlein, das ist hohe Wohn- und Lebensqualität ganz naturnah und trotzdem zentral gelegen im Herzen einer der bedeutendsten Wirtschaftsräume Europas. Das Wohnhaus befindet sich in zentraler Lage im Ortsteil Hähnlein. Die Autobahnanschlüsse A5 und A67 liegen ca. 5‑Autominuten entfernt.
Eckdaten:
Objekttyp: Einfamilienwohnhaus (freistehend)
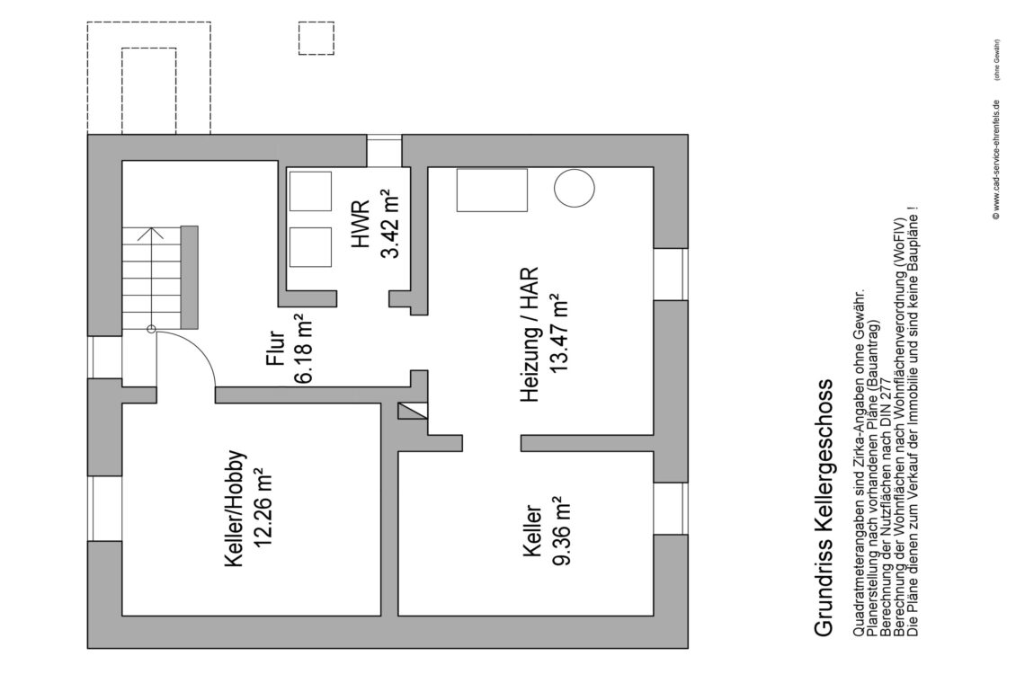
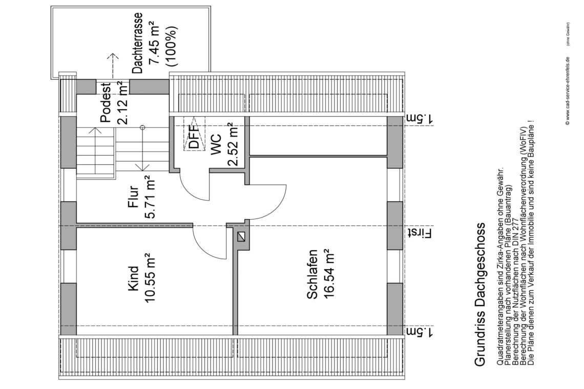
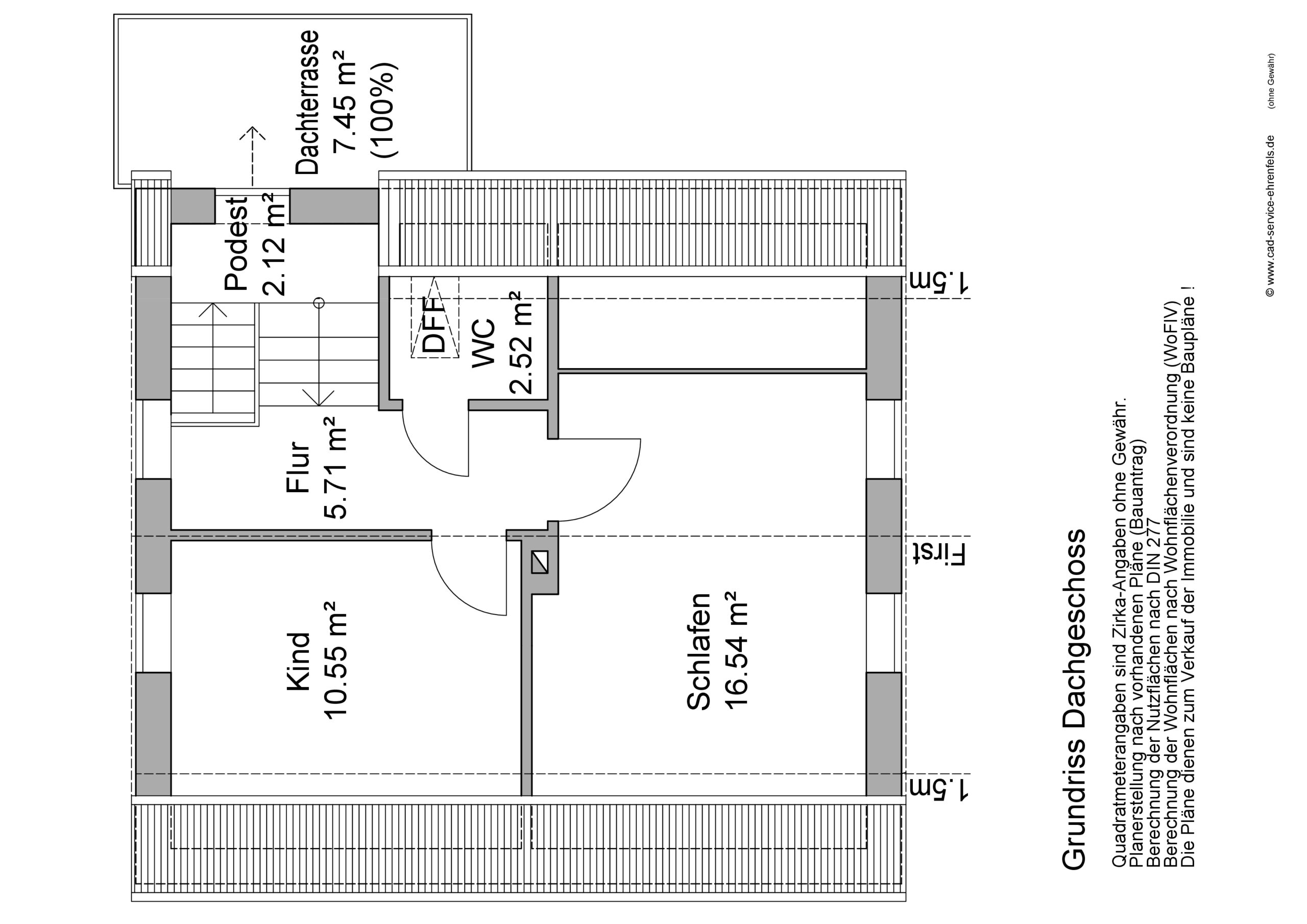
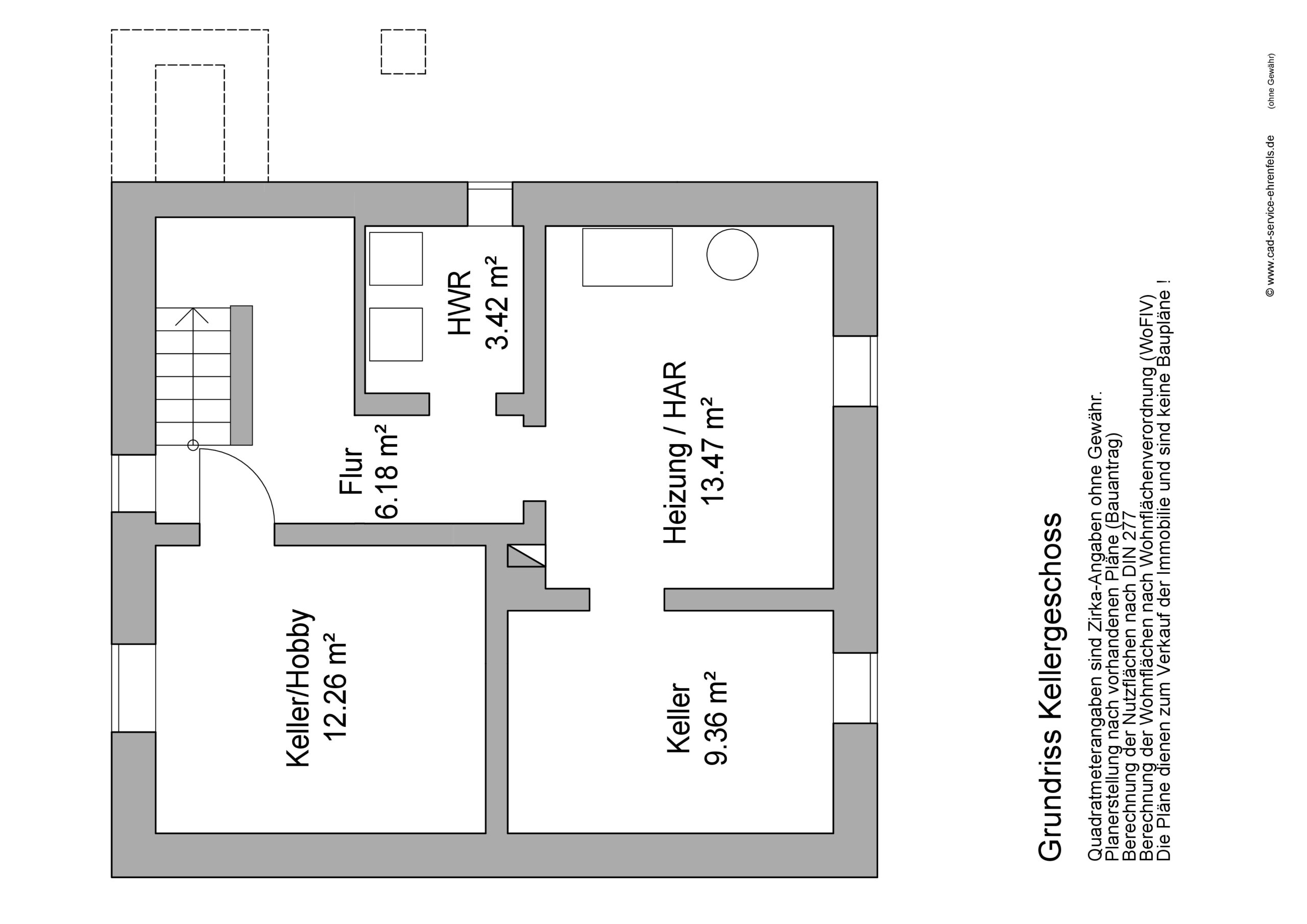
Wohnfläche gesamt ca.: 97 m² (EG/DG)
Wohn- Schlafzimmer: 5 (davon 3 Schlaf-/Kinderzimmer)
Bäder: 1
WC: 1 (im DG, nicht fertiggestellt)
Nutzfläche ca.: 65 m² (Keller ca. 45 qm; Nebengebäude ca. 20 qm)
Abstell-/Kellerräume: 4
Garage/Stellplätze: 0 / 1
Grundstücksfläche ca.: 237 m² (BRW = 470,- EUR/m2)
Bezugsfrei ab: nach Absprache
Baujahr: 1945
Objektzustand: gepflegt, in Teilen renovierungsbedürftig
Ausstattung: einfach
Anlagentechnik: 2007
Heizungsart: Zentralheizung mit WW-Aufbereitung (Viessmann)
Energieträger: Gas
Energieausweis: 305,7 kWh/(m²•a) = H (Bedarfsausweis)
Bauplanungsrecht: § 34 BauGB (umgebene Bebauung)
Internetverfügbarkeit: Glasfaseranschluss bereits im Haus (ggew.de); zudem bis zu 50 MBit/s (Telekom); Breitbandkabel bis zu 1.000 MBit/s (Vodafone); Quelle: Internet
Mehr Informationen im Anhang oder unter https://www.immobilienscout24.de/expose/166771498
Im Alleinvermittlungsauftrag!
Provision
Die Käufer-Provision beträgt 1,78 % inkl. 19 % MwSt. vom beurkundeten Kaufpreis.
Die Käufer-Provision ist verdient und fällig mit notarieller Beurkundung. Der Immobilienmakler hat einen provisionspflichtigen Maklervertrag in gleicher Höhe mit dem Verkäufer abgeschlossen (§ 656 c BGB).
Alle Angaben erfolgen nach bestem Wissen, jedoch ohne Gewähr für die Richtigkeit/Vollständigkeit und beruhen auf Aussagen des Verkäufers, für deren Inhalt die Fa. Thomas Wolf Immobilien keine Haftung übernimmt.
Adresse:
- Adresse: Waldstraße 1, 64665 Alsbach-Hähnlein
- Land Deutschland
- Postal code/ZIP 64665
Überblick
- Objekt-Referenznummer V2226
- Preis 319.000 €
- Objekt-Typ Haus
- Objekt-Status verfügbar
- Zimmer 4
- Schlafzimmer 3
- Badezimmer 1
- Baujahr 1945
- Wohnfläche 97 m2
- Grundstücksgröße 237 m2
- Rubrik Kaufobjekt
Anhänge














