Hähnlein – Freistehendes EFH mit grüner Gartenoase
Beschreibung
Gepflegtes modernisiertes Einfamilienwohnhaus mit grüner Gartenoase
kaufen – einziehen – wohlfühlen
Wohnen wo andere Urlaub machen – an der ″Hessischen Bergstraße″.
Alsbach-Hähnlein, das ist hohe Wohn- und Lebensqualität ganz naturnah und trotzdem zentral gelegen im Herzen einer der bedeutendsten Wirtschaftsräume Europas.
Das Wohnhaus befindet sich in zentraler Lage, Nähe des westlichen Ortsausgangs von Hähnlein.
Die Autobahnanschlüsse A5 und A67 liegen ca. 3 bis 5‑Autominuten entfernt.
Willkommen in Ihrem neuen Zuhause!
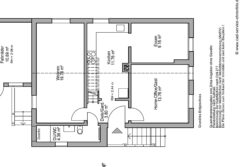
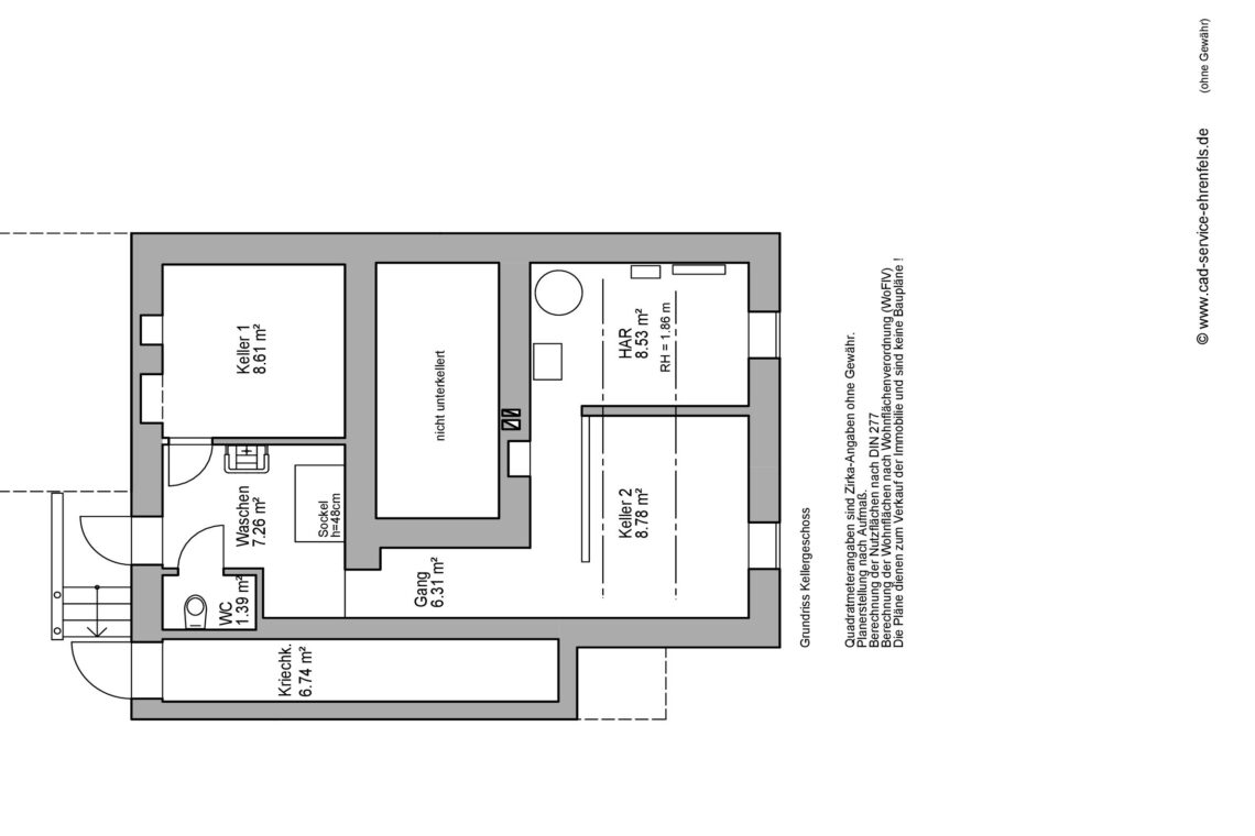
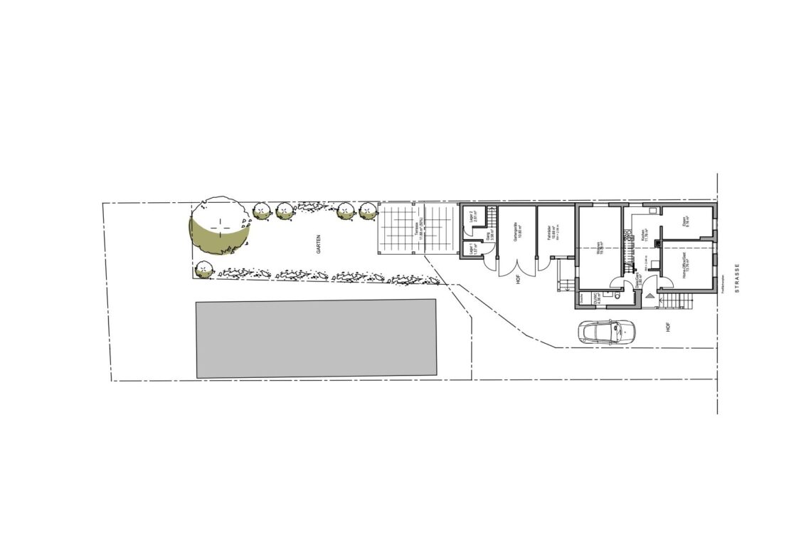
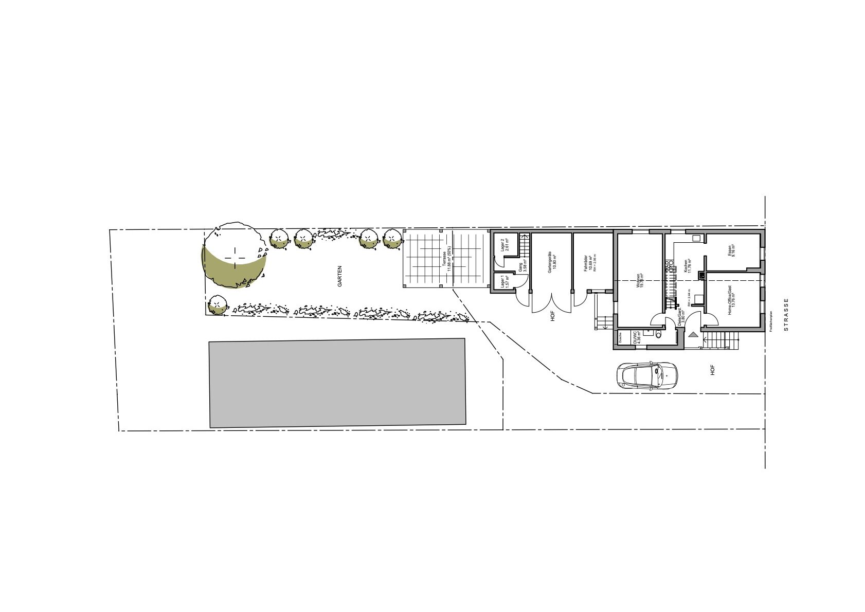
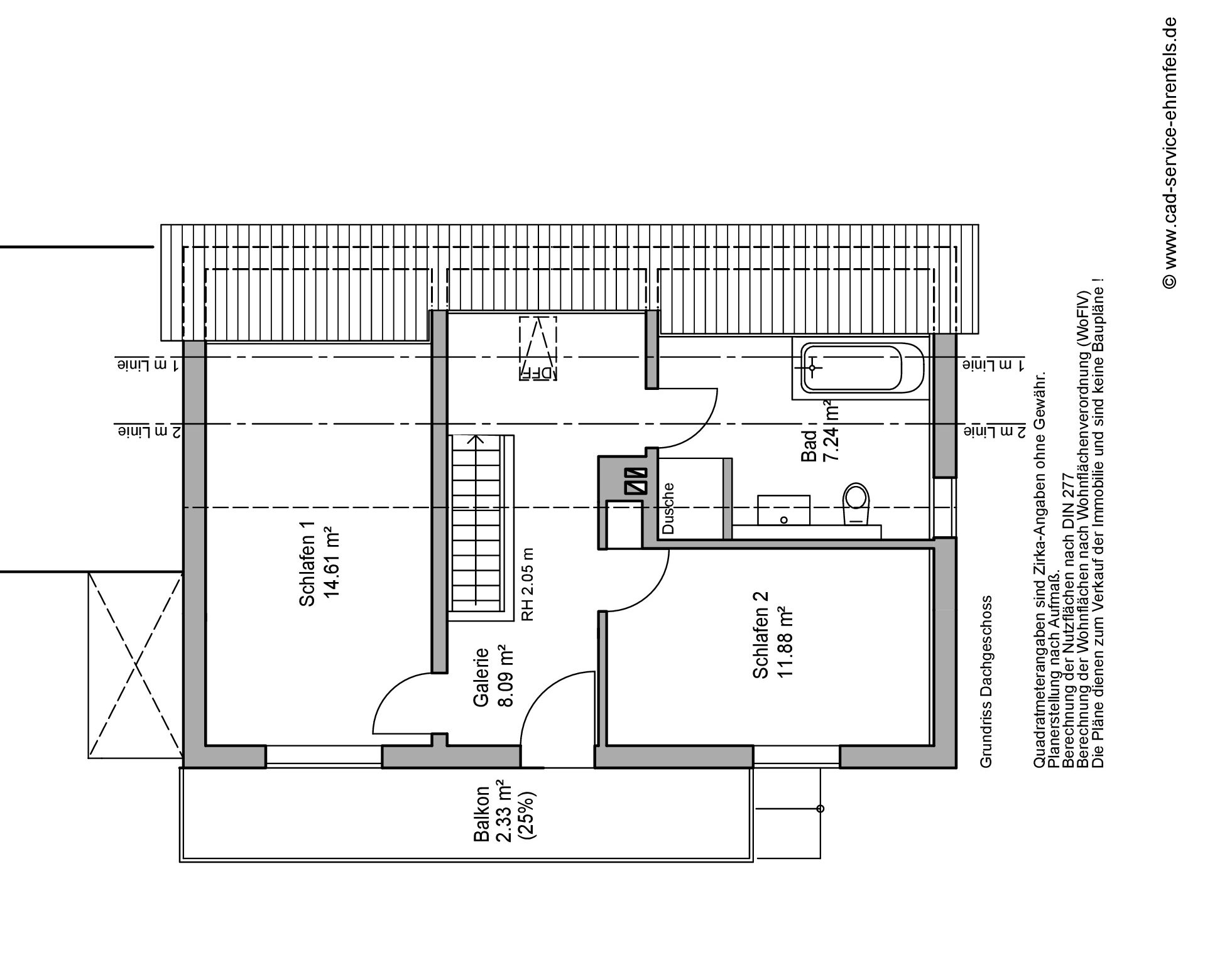
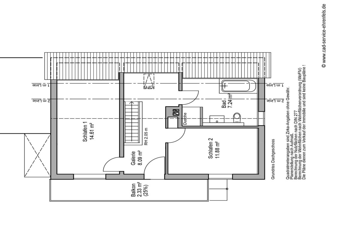
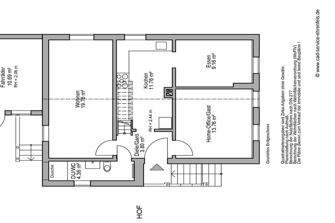
Auf einem ca. 274 qm (322 qm) großem Grundstück befindet sich dieses gepflegte freistehende Einfamilienwohnhaus mit ca. 119 qm Wohnfläche, Anbauten und einseitiger Grenzbebauung (Ostseite).
Das teilunterkellerte Wohnhaus erstreckt sich über ein Vollgeschoss (EG) sowie einem ausgebauten Dachgeschoss und beeindruckt durch eine durchdachte Raumaufteilung mit gehobener Ausstattung.
Diese gepflegte Immobilie wurde ca. im Jahr 1910/1920 in Massivbauweise errichtet, von 2016 bis heute umfangreich und hochwertig modernisiert, und eignet sich ideal für die kleine Familie.
Eckdaten:
Objekttyp: Einfamilienwohnhaus (freistehend)
Wohnfläche gesamt ca.: 118 m²
Wohn- Schlafzimmer: 5 (davon 3 Schlafzimmer)
Bäder/G‑Bad: 1 / 1 (mit Dusche)
Nutzfläche ca.: 77 m² (Keller + Anbauten)
Kellerräume: 4
Stellplätze: 2 — 3
Grundstücksfläche ca.: 274 m² (322 m²)
Bezugsfrei ab: nach Absprache
Baujahr: 1910/1920
Objektzustand: modernisiert und sehr gepflegt
Ausstattung: gehoben
Anlagentechnik: 2016
Heizungsart: Brennwert-Therme (Zentralheizung mit WW-Aufbereitung)
Energieträger: Gas
Energieausweis: 170,30 kWh/(m²•a) = F (Verbrauchsausweis)
Internetverfügbarkeit: derzeit bis zu 250 MBit/s (Glasfaser liegt in der Straße)
Bodenrichtwert: 470,- EUR/qm (Stichtag 01.01.2024)
Dienstbarkeiten/Baulasten: ja
Bauplanungsrecht: § 34 BauGB (umgebene Bebauung)
Weitere Informationen finden Sie im Anhang (Exposé V2221)
Im Alleinvermittlungsauftrag!
Provision
Die Käufer-Provision beträgt 1,78 % inkl. 19 % MwSt. vom beurkundeten Kaufpreis.
Die Käufer-Provision ist verdient und fällig mit notarieller Beurkundung. Der Immobilienmakler hat einen provisionspflichtigen Maklervertrag in gleicher Höhe mit dem Verkäufer abgeschlossen (§ 656 c BGB).
Alle Angaben erfolgen nach bestem Wissen, jedoch ohne Gewähr für die Richtigkeit/Vollständigkeit und beruhen auf Aussagen des Verkäufers, für deren Inhalt die Fa. Thomas Wolf Immobilien keine Haftung übernimmt.
Adresse:
- Adresse: Gernsheimer Str. 75, 64665 Alsbach-Hähnlein (OT Hähnlein)
- Land Deutschland
- Postal code/ZIP 64665
Überblick
- Objekt-Referenznummer V2221
- Preis 439.000 €
- Objekt-Typ Haus
- Objekt-Status reserviert
- Zimmer 5
- Schlafzimmer 3
- Badezimmer 2
- Baujahr 1915
- Wohnfläche 118 m2
- Grundstücksgröße 274 m2
- Rubrik Kaufobjekt










